Дизайн-проект квартиры: что входит, этапы, цены и как сделать самому
Дизайн-проект квартиры - "дорожная карта" ремонта. Он отвечает на вопросы: "Что, из чего и как делать?" и "Сколько это будет стоить?". Цель - экономить средства, время и нервы заказчика. Набором цветов и картинок обойтись не удастся: потребуются замеры, расчеты, чертежи, смета.
Мы проанализировали опыт подготовки проекта, риски и сложности, изучили примеры, побеседовали с экспертами и составили пошаговый план разработки документа.
Содержание:
- Что такое дизайн-проект и зачем он нужен
- Этапы разработки дизайн-проекта
- Подготовительный этап
- Рабочая документация (чертежи)
- Смета и комплектация
- Авторский надзор и реализация
- Типы дизайн-проекта
- Сколько стоит дизайн-проект квартиры
- Как правильно выбрать дизайнера или студию
- Как сделать проект самому
- Часто задаваемые вопросы
Что такое дизайн-проект и зачем он нужен
Один из самых популярных вопросов: зачем хозяину квартиры дизайн-проект, если нет речи о перепланировке или реконструкции? Мол, то и другое требует согласования с местными органами власти, ну а "простой ремонт" согласовывать не нужно. Объяснил прорабу "на пальцах" - и мастера сделают, и вовсе не обязательно это будет дорого и криво, если тщательно контролировать затраты и ход работ.
Так делать не стоит. И вот почему:
- ошибки без проекта всегда обходятся дорого, потому что в их стоимость входит цена ликвидации последствий неправильного решения. "Например, перенос розеток после черновой отделки может стоить 30-50 тысяч рублей", - говорит Марина Ендовицкая, генеральный директор студии интерьеров Genesis Interior.
- отсутствие дизайн-проекта делает возможными спорные ситуации во время ремонта. Когда чертежей нет, мастера часто действуют "по наитию". Например, при монтаже в одной из квартир установщики окон уменьшили подоконники до стандартного размера, хотя заказчик специально приобрел широкие. "Думали, что это брак", - объяснили они.
- при необходимости сократить смету ремонта придется очень долго искать, за счет чего можно было бы сэкономить.
Михаил Горбатов, учредитель компании ООО "Мастера Профи" из Новосибирска, решил сделать дизайн-проект до получения ключей на квартиру в новостройке. И как раз перед сдачей дома цены на стройматериалы выросли в полтора раза. Расходы должны были превысить бюджет.
"Но, поскольку все было у меня, что называется, перед глазами, я тут же заменил в проекте некоторые материалы и конструкции на более дешевые, - рассказал Михаил. - Например, в проекте были двери скрытого монтажа и скрытые плинтусы. Я заменил их на обычные двери и плинтусы и уложился в бюджет. А если бы у меня не было дизайн-проекта, то деньги я бы, конечно, нашел, но потерял больше времени".

Типовой дизайн-проект представляет собой альбом или PDF-файл, включающий:
- обмерный план - точный чертеж квартиры до начала изменений;
- план монтажа-демонтажа стен (в случае перепланировки или реконструкции) - "что ломаем, что строим";
- экспликацию помещений: пояснение к части дизайн-проекта в виде перечня с указанием некоторых характеристик помещений;
- схему открывания дверей;
- схему развертки стен: детальные чертежи каждой стены с расположением отделки, мебели, розеток;
- план расстановки мебели и оборудования: в том случае, если проект заказывается у дизайнера, заказчику предлагают на выбор несколько вариантов;
- схему раскладки напольного плинтуса;
- схему расположения розеток;
- схему размещения внутреннего блока сплит-системы;
- схему расположения настенных светильников;
- план расположения выключателей;
- схему расположения потолочных светильников;
- план потолка: тип, уровни, расположение светильников;
- план пола с указанием типа покрытия, уровней, рисунка укладки;
- схему раскладки настенных покрытий;
- ведомость отделочных материалов: подробные списки всех материалов (наименование, артикул, количество) и оборудования.
Смета может быть включена в дизайн-проект в виде приложения.
Этапы разработки дизайн-проекта
Подготовительный этап
Инвентаризация
Составление дизайн-проекта начинают не с обмеров помещения. Сначала следует провести инвентаризацию имущества, которое вы планируете забрать в новое жилье (или разместить в обновленной квартире). Без этого списка сложно будет потом отвечать себе или дизайнеру на вопросы о мебели, местах хранения вещей, детских игрушек, техники, одежды и т.д.
Лучше всего не просто перечислять вещи, а разделить их по категориям: ванная, прихожая, кухня, гостиная, спальня, кабинет. Не важно, какой площади квартира и сколько там комнат. Главное - все систематизировать.
Инвентаризация - дело добровольное. Но без нее будет сложно после ремонта наводить порядок. И мебель, скорее всего, придется докупать.
Анкетирование
Главный вопрос анкеты: какие вам и другим домочадцам нравятся стили, цвета и мебель. Лучше сделать подборку интерьеров, которые нравятся. В описании файла укажите, что именно понравилось.
Затем нужно ответить себе или дизайнеру на вопросы: чем вы и другие члены семьи занимаетесь дома, какие привычки у каждого. Вопросник должен быть максимально подробным - его можно найти в интернете или составить самому. Если же у дизайнера или студии нет вопросов или их очень мало, то это "красный флаг": скорее всего, с ними не стоит иметь дело.
Кроме того, что касается квартиры и жильцов ("Нужно ли делать перепланировку?", "Есть ли у жильцов хобби, которые требуют места?", "Как часто в доме останавливаются гости?", "Нужно ли менять радиаторы?", "Будут ли в доме теплые полы?" и т.п.), нельзя забывать об отдельных помещениях. Конечно, не нужно создавать отдельный дизайн-проект комнаты, но весьма важны ответы на вопросы: "В каком стиле должна быть выполнена комната?", "Нужно ли делать звукоизоляцию?", "Будет ли в комнате мебель из старого интерьера?" и т.д.
Привлекать к обсуждению надо всех, кто живет в квартире. Тогда сразу выяснится, что одному нужен большой обеденный стол, другому - место для занятий спортом, а третьему - тихий уголок для чтения.
Пропускать этот этап нельзя, иначе рискуете получить интерьер, который хорошо смотрится, но не удобен. Лучше записывать все ответы, даже очевидные. Это поможет избежать неприятных сюрпризов.
Ответы выписывайте в отдельный столбик: так потом можно быстро их просматривать и отмечать, что учтено, какие материалы, мебель и декор нужны. Заполнение может занять несколько дней. Но лучше потратить время на планирование, чем забыть о какой-то из важных опций, а потом страдать или выслушивать упреки.
Визуализация

После выявления потребностей и пожеланий делают предварительную визуализацию. То, что "рисует" для нас дизайнер или мы для себя, называется дизайн-борд. Это коллаж с предметами интерьера и элементами отделки.
Можно создавать коллажи в Photoshop или в бесплатных программах со сходным функционалом (Gimp, Pixlr). Но тем, кто делает дизайн-проект для себя, стоит помнить, что специально "заморачиваться" не нужно: для понятной визуализации хватит самых простых Paint и Word.
Некоторые интерьеры, которые создаются на этом этапе, войдут в дизайн-проект. Но главная задача другая: дать возможность заказчику или автору дизайн-проекта "пожить" в новом помещении виртуально, чтобы понять, стоит ли делать все именно так. Определиться с композиционными и цветовыми решениями, фактурами и материалами, подобрать подходящую мебель и другие предметы обстановки.
Обычно на этом этапе оценивается, сколько в целом будет стоить новый дизайн интерьера, проекты переходят к стадии воплощения в виде чертежей. "В понимании профессионалов дизайн-проект - это и есть набор чертежей", - говорит Ирина Лапина, дизайнер по интерьеру.
Рабочая документация (чертежи)
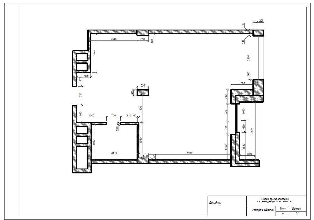
Обмеры помещения

Обмер квартиры - пожалуй, самая ответственная и сложная часть работы. Как утверждают дизайнеры, 70% всех ошибок при ремонте - это ошибки при обмерах помещения.
Измерения займут 1-3 часа. Чтобы работать быстрее, найдите помощника: один измеряет, другой - записывает результаты. Для обмеров понадобится ленточная рулетка длиной 5-10 метров. Если есть лазерная рулетка, возьмите и ее с собой. Но для коротких отрезков она не подойдет. И обязательно захватите с собой план квартиры (распечатку из техпаспорта на листе А4).
- Сначала измерьте дверной проем, высоту и ширину. Если дверь уже стоит, измерьте ее полотно. Размер стандартной двери - 800х2000 мм.
- От входа двигайтесь по часовой стрелке, измеряйте длину стен и выступов.
- Измерьте высоту и ширину оконных проемов, а также высоту до окон от пола. Зарисуйте схему открывания окон, чтобы учесть ее при планировании расстановки мебели.
- Если к радиаторам идут трубы стояка центрального отопления, их рисуют с привязкой к ближайшим стенам (укажите расстояние до стен).
- Не забудьте измерить высоту потолков. В жилой зоне и коридоре их высота будет одинаковой, но в санузлах пол ниже, здесь высоту потолка измеряют отдельно.
- Обязательно отметьте на схеме:
- радиаторы отопления и подоконники;
- отверстия вытяжной вентиляции на кухне и в санузлах, газовую трубу на кухне;
- место для внешних блоков кондиционера;
- стояки канализации и водоснабжения;
- пожарные лестницы на лоджиях;
- несущие балки, которые выступают на потолке или из стен;
- электрический щиток, домофон, точки входа интернет-кабеля в дом;
- все несущие стены и колонны, а также стены с отверстиями вытяжной вентиляции.
- Сделайте фото каждого помещения - от входа и от дальнего угла, а также всех важных узлов и зон, которые вы отобразили на схеме.
- Запишите видео, двигаясь от входной двери по часовой стрелке.
Подготовка чертежей
Если заказать дизайн-проект профессионалам, они будут его делать в среднем от месяца до трех. В каждом таком документе, помимо условных обозначений, есть и развернутые пояснения, и обязательная подробная "легенда" (расшифровка условных знаков).
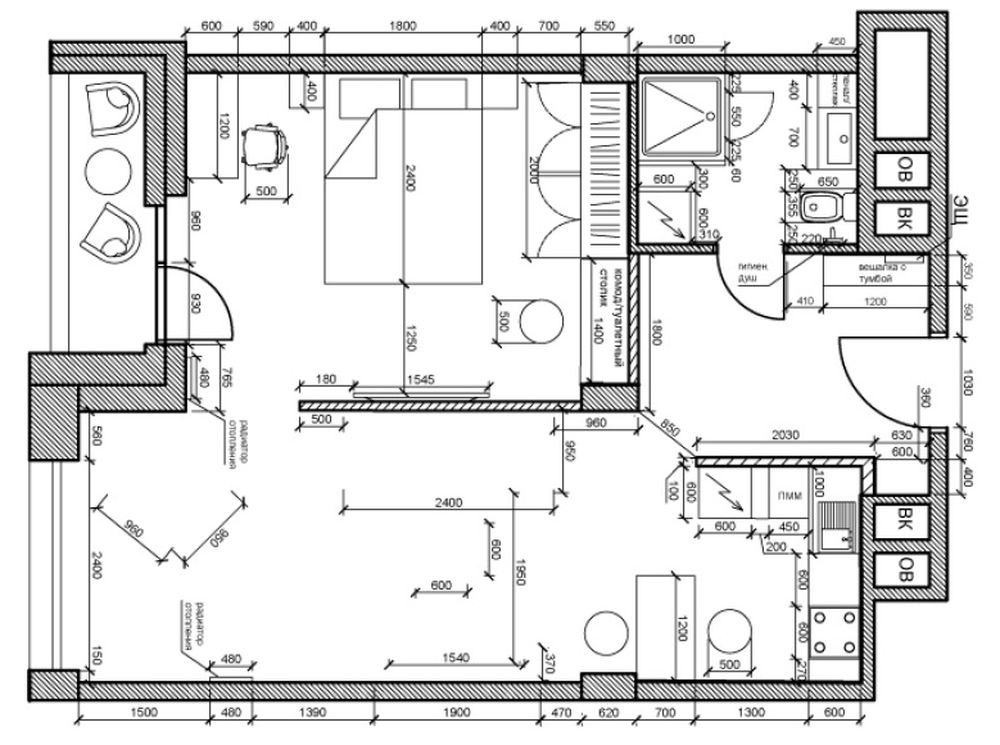
На плане монтажа-демонтажа, который в случае перепланировок следует сразу за обмерным планом, - чертеж помещения с изменениями. На иллюстрации отмечены перемещение дверного проема и строительство перегородок. Такой чертеж помогает хозяину квартиры представить перепланировку и оценить, насколько она отвечает его образу жизни.

План расстановки мебели и оборудования показывает, где будет стоять каждая вещь, вплоть до журнального столика. Здесь проверяется эргономика - удобно ли открываются двери шкафа, остается ли проход, поместится ли диван. Оборудование расставляют так, чтобы оно не ухудшало качество жизни (например, установка кондиционера перед кроватью приведет к частым простудам).
Самые сложные и важные чертежи (их всегда несколько) посвящены электропроводке.
Лишних розеток не бывает. Поэтому на схеме размещения розеток желательно предусмотреть в каждом помещении одну запасную. На этой же схеме указывают выводы под интернет, телевизионный кабель и стационарный телефон, если он есть.
На схеме размещения светильников должно быть указано, придется ли штробить стены для выводов под приборы.
Схема выключателей - про то, как все светильники будут включаться и выключаться. Если планируется теплый пол, то и для него должен быть выключатель. Должны быть обозначены все расстояния, на котором находятся выключатели от пола, углов и других ориентиров.

Помимо планов и схем в дизайн-проекте есть развертки стен. Это схематичные визуализации каждой из четырех стен помещения после ремонта: представьте, что работы закончились, и вы стоите прямо перед стеной...
Развертка стен туалета и ванной позволяет видеть раскладку плитки, рассчитать ее нужное количество, понять, где будет унитаз, на какой высоте установят раковину и душ. "В реальной практике только за счет грамотного раскроя плитки удавалось уменьшить расходы на отделку почти на 12%, - говорит гендиректор студии интерьеров Марина Ендовицкая. - Это десятки тысяч рублей экономии".
В развертке стен на кухне должны быть учтены розетки для техники, вытяжка и коммуникации. Вообще, это настолько важная и самостоятельная часть дома, что некоторые дизайнеры считают необходимым отдельный дизайн-проект кухни.
План пола и схема раскладки настенных покрытий - те же развертки, только здесь указывают конкретные материалы и их количество.
Смета и комплектация
Когда завершается разработка дизайн-проекта, то чаще всего заказчик получает смету как бесплатный бонус. Она включает в себя перечень:
- материалов,
- покрытий,
- изделий,
- мебели,
- фурнитуры,
- бытовой техники,
- электрооборудования,
- элементов освещения,
- сантехники и комплектующих к ней,
- текстиля,
- декора с указанием необходимого количества и стоимости.
К этим суммам требуется прибавить 10-15% - цену доставки.

В смету проекта не входит стоимость:
- работ над воплощением дизайнерской мысли,
- черновых материалов,
- инженерной сантехники,
- мешков для мусора,
- вывоза мусора.
"Количество материала в смете, которая становится приложением к дизайн-проекту, считают без допуска, без запаса в 10-15%, - обращает внимание Ирина Лапина. - То есть неизбежные потери из-за брака или других обстоятельств в ней обычно не учитывают".
Комплектация, то есть помощь в подборе и закупке мебели - отдельная платная услуга. В зависимости от региона это стоит от 500 руб./м2 (без учета цены мебели).
Авторский надзор и реализация
Авторский надзор - это сопровождения проекта дизайнером на всех этапах выполнения бригадой строительных и ремонтных работ. Услуга включает в себя:
- регулярное посещение дизайнером объекта;
- контроль соответствия работ проектной документации;
- своевременное внесение в проектную документацию корректировок;
- комплектация мебелью;
- информирование заказчика о продвижении работ;
- ведение журнала, в котором фиксируется каждое посещение и отображается реальный ход работ.
Контролировать надзор просто: требуйте фото- и видеоотчеты по ключевым этапам, присутствуйте на совместных обходах, фиксируйте все корректировки в документации и требуйте их письменных обоснований.
Типы дизайн-проекта
- Эскизный. Планировка, план расстановки мебели, развертки и цветовые решения. Подходит для косметического ремонта: перекрасить стены, заменить мебель и текстиль в студии без капитальных работ.
- Стандартный. Чертежи и визуализации (развертки) без подробных экспликаций и сметы. Удобен для средних по сложности проектов, для небольших семейных квартир.
- Полный. Включает все: документацию, визуализации, спецификации, сметы. Оптимален для капитального ремонта и перепланировки. Подходит, когда планируется перенос кухни или объединение санузлов.
- Дизайн-проект "под ключ". Полный проект с авторским надзором, сметами и комплектацией. Заказчик фактически только утверждает решения и приезжает в готовый интерьер.
"Выбор типа или вида дизайн-проекта зависит не от характеристик помещения, а от целей его использования и финансовых возможностей собственника или арендатора, - объясняет дизайнер Ирина Лапина. - Допустим, для того чтобы быстро подготовить обычную, "неубитую" студию к сдаче в аренду, достаточно косметического ремонта, а значит, "эскизного" дизайн-проекта. В том случае, если вы планируете переехать туда вместе с семьей, для оптимального использования небольшого пространства понадобится полный дизайн-проект".

Сколько стоит дизайн-проект квартиры
Дизайн-проект, стоимость которого определяется главным образом набором услуг, все же зависит от местного рынка. По данным исследования торговой компании Basic Decor, средняя цена дизайн-проекта в городах России находится между 2268 руб./м2 в Челябинске и 4351 руб./м2 в Москве.
В свою очередь, эксперт Максим Черный, владелец компании Artum, отмечает, что за дизайн-проект Москва платит несколько меньше - от 500 до 1500 руб./м2 в эконом-сегменте. Сегмент "комфорт" по его классификации начинается от 1500 руб./м2, а премиум - от 3500 руб./м2.
"Некоторые магазины стройматериалов при условии закупки у них материалов для ремонта на определенную сумму предоставляют в качестве бонуса бесплатный дизайн-проект", - рассказал "РГ" специалист по ремонту Михаил Горбатов.
Как правильно выбрать дизайнера или студию
"Был у нас случай, когда дизайнер заказчика начертил ванную комнату и душевую с низким поддоном, но не учел того, что стояк канализации находится очень далеко, - рассказал Михаил Горбатов. - И наклон для стока сделать не получится. Нужно было делать душевую с высоким поддоном, чтобы вода правильно уходила. Поэтому нужно либо выбирать опытного дизайнера, либо показывать проект специалисту по ремонту. Особенно то, что касается электрики и сантехники".

На что обращать внимание при выборе:
- Портфолио. Заказчика должен больше интересовать не образцовый дизайн-проект. Фото реализованных проектов, а также, по возможности, осмотр созданных дизайнером (или компанией) реальных интерьеров помогут отличить мастера дизайна от мастера самопрезентации.
- Отзывы. Ищите реальные отзывы, желательно с контактами заказчиков.
- Пакет услуг. Четко понимайте, что входит в стоимость. Сколько визуализаций, сколько правок, входят ли инженерные чертежи?
- Договор. В нем должно быть прописано все: этапы, сроки, стоимость, состав проекта, условия внесения правок, порядок расчетов.
Как сделать проект самому
Но опытные дизайнеры создают дизайн-проекты, цены которых иногда заказчику не по карману. А неопытный ("студент-архитектор") или сам хозяин квартиры ("проект-на-коленке") могут наделать таких ошибок, что все придется снова ремонтировать.
Как быть? Те, кто решил все делать самостоятельно, обычно учатся по видеороликам. "Я знаю таких людей, которые учились на курсах дизайнеров, чтобы подготовить дизайн-проект для себя, потому что курсы дешевле проекта большой квартиры", - говорит специалист по интерьеру Ирина Лапина. Люди старались главным образом освоить профессиональные AutoCAD и ArchiCAD.
На самом деле не важно, на чем и каким образом вы будете чертить - хоть фломастерами в школьной тетради. Главное, чтобы чертежи читались, расчеты соответствовали действительности и было понятно, что именно должно быть сделано. Но, конечно, планы и схемы легче делать в какой-либо компьютерной программе, чем карандашом или ручкой на бумаге.

Сегодня появилось множество программ и онлайн-сервисов (платных и бесплатных), которые не только позволяют подготовить чертежи, но и помогают сделать это даже очень далеким от черчения людям. И, главное, не требуют долгого и кропотливого изучения.
Программы, чтобы создать дизайн-проект онлайн:
- Planoplan - российский сервис для дизайна с качественной визуализацией, расстановкой мебели, составлением схем электрики;
- Remplanner - российский сервис для дизайна, перепланировки и ремонта с разверткой стен, расчетом смет, объемов и метражей;
- Дизайн интерьера 3D - российский сервис для быстрого создания базовых планов, визуализаций и расчета сметы на материалы.
"Кстати, хотя я давно занимаюсь ремонтом, показал сделанный мною дизайн-проект специалисту, дизайнеру, - говорит Михаил Горбатов. - Он добавил мне еще одну розетку, это было правильное решение. У мастеров вопросов не было - я только успевал подвозить стройматериалы".
Что входит в полный дизайн-проект квартиры?
Полный комплект рабочей документации (все планы и развертки), плюс ведомости со списками материалов и оборудования, а также смета.
Что такое рабочая документация и зачем она нужна?
Это подробные чертежи для ремонта. Без них мастера работают "на глазок", что не исключает разного рода дорогостоящие ошибки. Перепланировка и реконструкция без тщательно подготовленной и согласованной рабочей документации будут признаны незаконными.
Стоит ли делать проект самостоятельно или лучше доверить профессионалам?
Сделать самостоятельно - если вы готовы тратить много времени и у вас мало денег. Доверить хорошему профессионалу - если планируется сложная перепланировка, требуется индивидуальная мебель, у вас есть деньги на хорошего дизайнера или на заказ проекта в крупном агентстве. Покупать услуги "недорогого дизайнера" можно только с условием утверждения проекта специалистом по ремонту.
Что такое авторский надзор и зачем он нужен?
Это контроль дизайнера за ходом ремонта. Он предотвращает ошибки бригады, выполняющей ремонт, наблюдает за тем, чтобы мастера точно следовали чертежам, закупались именно те материалы, которые предусмотрены проектом и приложениями к нему. Без надзора даже лучший проект может быть испорчен при реализации.
Можно ли скачать готовый дизайн-проект квартиры в PDF?
Можно найти типовые планировки, но они не будут учитывать размер вашей квартиры, расположение окон, дверей и коммуникаций.

Какова средняя цена дизайн-проекта?
В среднем по самым крупным городам России (включая Москву и Санкт-Петербург) - около 3000 руб./м2. Средняя цена без учета Москвы и Петербурга не намного меньше.